Signed in as:
filler@godaddy.com
Signed in as:
filler@godaddy.com
Forget everything you thought you knew about modular homes.
These aren't cookie-cutter trailers from decades past — today’s luxury modular homes are redefining modern living through precision, efficiency, and high-end customization.
When we talk about "modular," we're referring to the construction process, not the end result. Modular homes are built in sections (or modules) in a controlled factory environment, then transported to your site and assembled on a permanent foundation. Once completed, they're virtually indistinguishable from traditional site-built homes — and in many cases, superior in quality.
One of the biggest advantages? Cost and time savings. Modular construction can reduce build times by 30–50% and costs by up to 40%, depending on design and customization. Because much of the work is done off-site, weather delays and labor shortages are minimized, allowing your dream home to come together faster and more efficiently.
We take it a step further. Every structure we deliver uses AdvanTech® subflooring and premium-grade materials, and we upgrade key structural components to exceed industry standards. From layout and finishes to fixtures and façade, everything is tailored to your vision — luxury, your way.
Modular doesn’t mean compromise. It means smarter building, faster timelines, and the same (or better) craftsmanship and design you'd expect from a traditional custom home.
Let's build something incredible together!








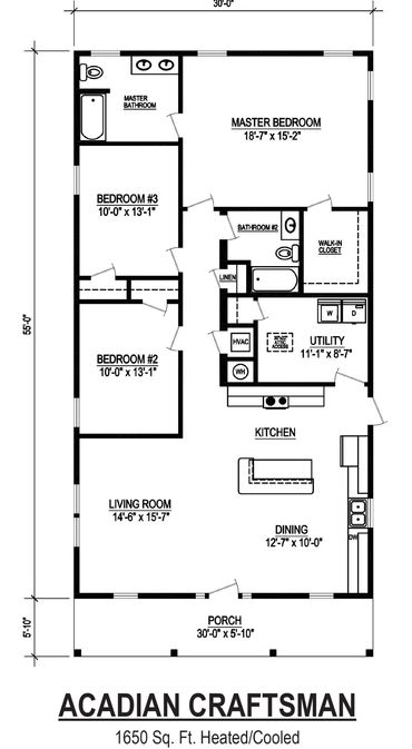
3 Bed
2 Bath
1400 to 1800 Square Feet


Starting in the mid $600s




Starting at $600K




Starting in the mid $700s




Amberjack Cottage
Spacious 3 Level
3 Bedrooms
3.5 Baths
2 Car Garage
Entertainment Decks




2nd Level











Copyright © 2023 Millworth Group - All Rights Reserved.
DBA Robert S Perkins General Contractor Inc. Lic.# 013898